jazyk / language:   česky  |  english

produkty a služby  |  novinky  |  podpora on-line  |  o nás  |  kontakty  |  partneři  |  info na vyžádání  |  ... a něco navíc  |  
podpora on-line | seriál Upínače nástrojů, Technický tydeník, 2012

Rozhraní mezi nástrojem, resp. jeho držákem, a vřetenem obráběcího stroje má zásadní význam na výsledky, kterých lze s nástrojem dosáhnout. Nejde jen o maximální stabilitu upnutí a schopnost přenášet vysoké krouticí a ohybové momenty; zvolené rozhraní musí zajišťovat i možnost rychlé výměny nástroje, vysokou opakovanou přesnost, přívod kapaliny středem nástroje a řadu dalších požadavků. Spojení musí být imunní vůči vysokým otáčkám vřetena, kdy odstředivou silou dochází k nepatrnému zvětšování jeho kuželové dutiny a vtahování stopky do dutiny a tím i změně axiální polohy nástroje; z téhož důvodu může docházet k potížím při uvolňování nástroje z vřetena po jeho zastavení. Není proto divu, že všem známá a dlouhá léta užívaná spojení na bázi Morse kuželu dle ČSN 220410 a běžných strmých kuželů s kuželovitostí 7 : 24 dle DIN 69871, DIN 2080, JIS B6339 a dalších, kde veškerý přenos sil, působících na nástroj, se děje výhradně kuželovou plochou, již přestávají při otáčkách nad 8000 ot/min vyhovovat. Ukázalo se, že řešení nabízí taková spojení, kdy jsou v kontaktu jak kuželová plocha stopky nástroje a dutiny vřetena, tak rovinné dosedací plochy příruby nástroje a čela vřetena. Současné technologické metody totiž umožňují něco, co dříve bylo nemyslitelné – sladit rozměry a polohu kužele s polohou čelní plochy a pomocí vhodně volené velikosti síly, vtahující kužel stopky do dutiny vřetena, zajistit definované a žádoucí rozdělení upínací síly mezi obě jmenované plochy. Tento princip využívají moderní rozhraní stroj-nástroj, a proto budou popsána blíže.

 

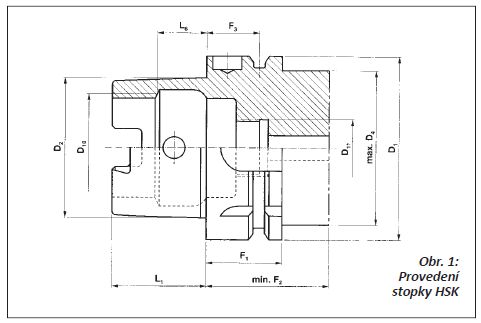
 Obr. 1: Provedení stopky HSK


HSK (Hohl Schaft Kegel – dutá kuželovitá stopka) – toto spojení bylo zavedeno v průběhu devadesátých let minulého století a bylo přejato do DIN 69893 pro stopku (obr. 1) a DIN 69093 pro vřeteno. Vyznačuje se vysokou tuhostí a stabilitou, protože relativně pružná stěna kužele se při vysokých otáčkách roztahuje a intenzita kontaktu s vřetenem se nezmenšuje; velmi dobře snáší vysoká radiální zatížení – jeho radiální tuhost je až 5x větší než tuhost srovnatelného strmého kužele. Je určeno výhradně pro vnitřní upínání, a to jak pro ruční, tak pro automatické. Axiální upínací sílu může vyvozovat tažná tyč nebo otočný excentr, pro jehož ovládání jsou ve stopce dva protilehlé otvory a který se užívá při ručním upínání. Upínací síla je znásobena kuželovou plochou v dutině, do níž se opírají rozpínatelné upínací kameny, ovládané touto tyčí či excentry (obr. 2). Při pouhém zasunutí stopky do dutiny vřetena je vůle mezi čelem vřetena a dosedací plochou příruby cca 0,3 mm – dle velikosti spojení – a teprve aktivací axiální upínací síly se docílí kontaktu na čele i na kuželu. Zvyšováním axiální upínací síly se zvyšuje její složka působící mezi přírubou nástroje a čelem vřetena, a tím se žádoucím způsobem zvyšuje axiální tuhost spojení. Mezi další výhody rozhraní HSK lze jmenovat kompaktní stavbu – při porovnání s obdobně výkonným rozhraním na bázi strmého kužele má zhruba poloviční rozměry. Menší hmotnost je vítaná pro manipulaci i pro dosahování velmi krátkých časů výměny; poměrně snadno lze adaptovat vřeteno s kuželovou dutinou 7 : 24 pro HSK pomocí představné příruby, která obsahuje vnitřní kužel 1 : 10 a je na vřeteno pevně přichycena. V průběhu doby bylo vyvinuto několik modifikací rozhraní HSK – pro ruční a automatickou výměnu, pro velmi vysoké otáčky, pro užití na víceprofesních obráběcích centrech, kde soustružnické aplikace vyžadují velmi přesné polohování podél osy rotace, pro různé způsoby přívodu řezné kapaliny a se specifickým provedením příruby, resp. uchopovací drážky (označ. A–F a T). Pro automatickou výměnu existuje několik provedení tažné tyče – systém Berg, Ott, Ortlieb aj., vlastní princip upnutí je však stejný.

Vnější kuželovitost HSK stopky je 1 : 10, její vnitřní kuželová plocha má sklon 60° k ose stopky a pro splnění podmínky správného upnutí musí být aktivní plochy vyráběny v tolerancích několika µm. Pro jednoznačné polohování stopky kolem osy rotace slouží dva axiální podélné výřezy s nestejnou hloubkou. Spojení HSK se vyrábí ve velikostech 25, 32, 40, 50, 63, 80, 100, 125 a 160, přičemž číselné označení velikosti odpovídá vnějšímu průměru příruby. Maximální otáčky doporučuje norma 50 000 ot/min pro HSK-A 32 a 16 000 ot/min pro HSK-A 100; doporučený maximální krouticí moment se pohybuje od 140 Nm pro HSK-C 40 do 1450 Nm pro HSK- -C 80 s tím, že uvedená hodnota se může měnit dle užitého systému tažné tyče.

 

 Obr. 2: Upínání HSK, systém Röhm


Rozhraní Coromant Capto – spojka Coromant Capto, využívající kontakt na čelní dosedací ploše příruby a na kuželové ploše stopky s kuželovitostí 1 : 20, byla vyvinuta společností Sandvik Coromant a uvedena na trh rovněž počátkem devadesátých let minulého století; je popsána normou ISO 26623 a je vhodná pro soustružnické i frézovací aplikace včetně vysokorychlostního obrábění. Jejím význačným rysem je, že neužívá kužel rotačního tvaru, nýbrž kužel polygonální bez jakýchkoli nestabilních součástí (obr. 3). To má za následek vynikající rozdělení upínací síly na kontaktních plochách, extrémní stabilitu spojení, tuhost v krutu i v ohybu a vysokou opakovatelnou přesnost polohování ostří v rozsahu +/–2 µm v ose X a Z. Je pochopitelné, že takovéto provedení stopky klade vysoké nároky na technologii výroby, avšak přednosti tohoto spojení spolu se současnými technologickými možnostmi se zasloužily o jeho velké rozšíření. Upínání je vnitřní, stopka je vtahována do kuželové dutiny vřetena pomocí tažné tyče. Ta ovládá rozepínatelné kameny působící na šikmou plochu její dutiny a v rozepnuté poloze je fixuje. Kuželová stopka je vtahována do dutiny vřetena symetricky, s předpětím několika desítek kN tak, aby bylo dosaženo kontaktu mezi dosedací plochou příruby a čelem vřetena. Podle zamýšlené aplikace se nabízí několik způsobů upnutí. Tažná tyč může být ovládána vačkou, pružinou nebo hydromechanickým zařízením. Pro spojení základních držáků a prodlužovacích nástavců s obráběcími nástroji lze použít místo pouzdra s rozpínacími kameny pouze středový šroub; u frézovacích či vrtacích strojů bez automatické výměny lze volit čelní upínání, které je sice rychlé, ale proti ostatním způsobům dává pouze 50 % upínací síly. Toto spojení se nabízí v šesti velikostech C3 až C10 (s průměrem příruby 32, 40, 50, 63, 80 a 100 mm); stalo se základem rozsáhlého modulárního nástrojového systému Coromant Capto.

 

 Obr. 3: Spojka Coromant Capto C10


Nikken 3Lock – zcela odlišný systém dosažení současného kontaktu na čelní ploše a na kuželu zvolili konstruktéři japonské společnosti Nikken. Výsledkem jejich úvah je kuželová stopka s přírubou, opatřená kuželovým pláštěm. Jeho vnitřní plocha je v kontaktu s kuželem stopky a vnější v kontaktu se standardní kuželovou dutinou 7 : 24 vřetene; kontakt mezi dosedací plochou příruby a čelem kuželového pláště je realizován prostřednictvím předepnutých talířových pružin (obr. 4). Po vsunutí sestavy do kužele vřetena jsou v (nedokonalém) kontaktu pouze kuželové plochy. Po aktivování upínací síly, která na sestavu působí prostřednictvím vnějšího upínacího čepu, dojde ke kontaktu mezi čelem vřetene obráběcího stroje a dosedací plochou příruby, talířové pružiny definovanou silou zatlačí plášť do kuželové dutiny a zaslouží se o správný kontakt mezi oběma kuželovými plochami – je tedy realizován trojitý kontakt s tím, že 10 % síly je na čele a 90 % na kuželu. Výhodou tohoto spojení je jeho osová symetrie, značná tuhost a stabilita, tlumení vibrací a z toho plynoucí lepší kvalita obráběného povrchu a delší životnost nástroje a v neposlední řadě možnost jeho užití ve vřetenech se standardní dutinou 7 : 24. Za zmínku stojí i to, že toto spojení eliminuje do určité míry i negativní vlivy, vznikající postupným opotřebováním vřetena obráběcího stroje a jeho uložení.

 

 Obr. 4: Upínání Nikken 3Lock


Další typy rozhraní – pro úplnost lze dodat, že uživatel se může setkat s dalšími typy rozhraní – například se spojkami typu KM, což je spojení na bázi duté kuželové stopky, vyvinuté americkou společností Kennametal, nebo se systémem Big Plus, přesným kuželem 7 : 24 opatřeným dosedací opěrnou přírubou.

Ing. Petr Borovan, převzato z Technického týdeníku

podrubriky seriál Upínače nástrojů, Technický tydeník, 2012:




produkty a služby  |  novinky  |  podpora on-line  |  o nás  |  kontakty  |  partneři  |  info na vyžádání  |  ... a něco navíc  |  

sitemap
www.technology-support.cz